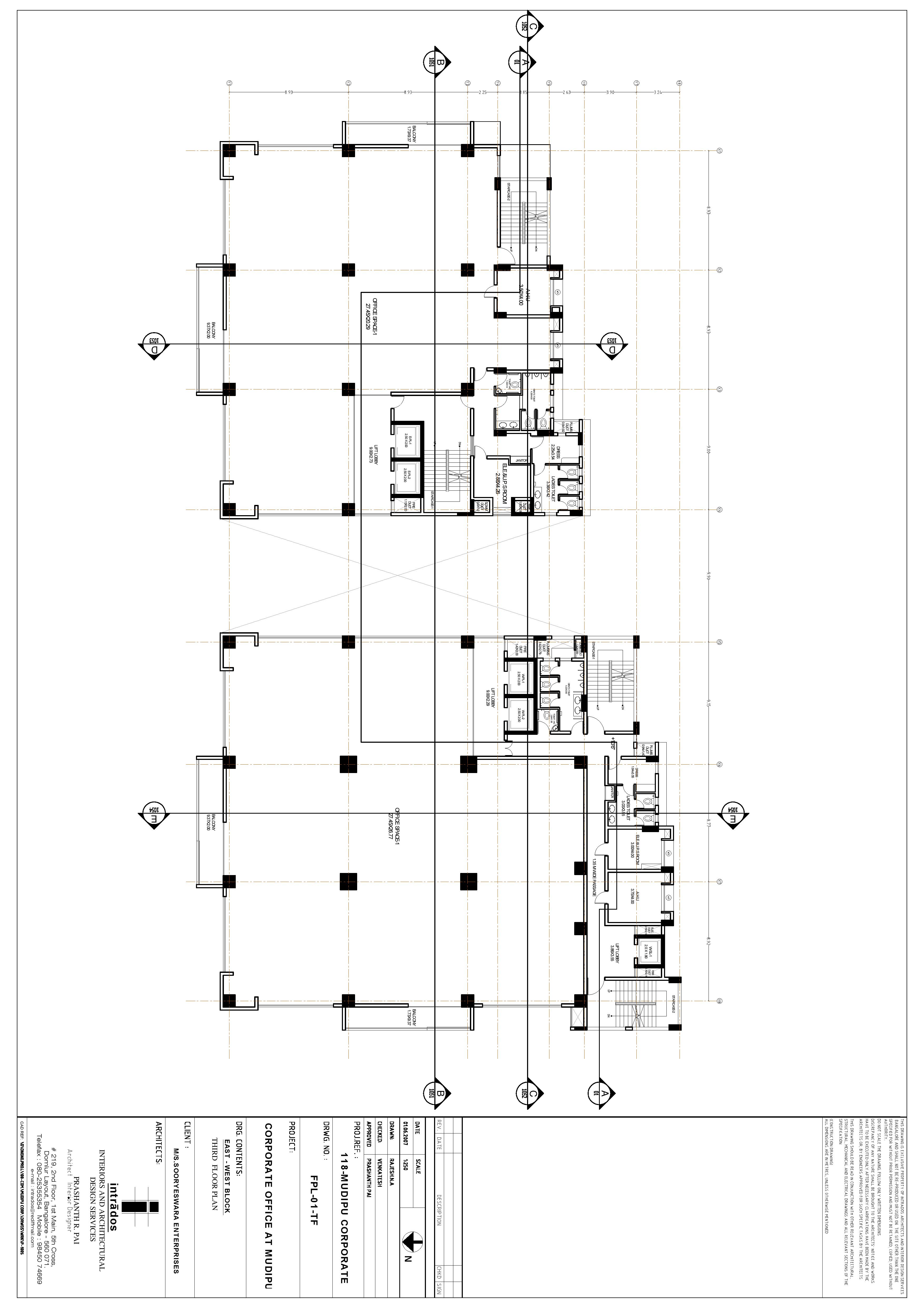
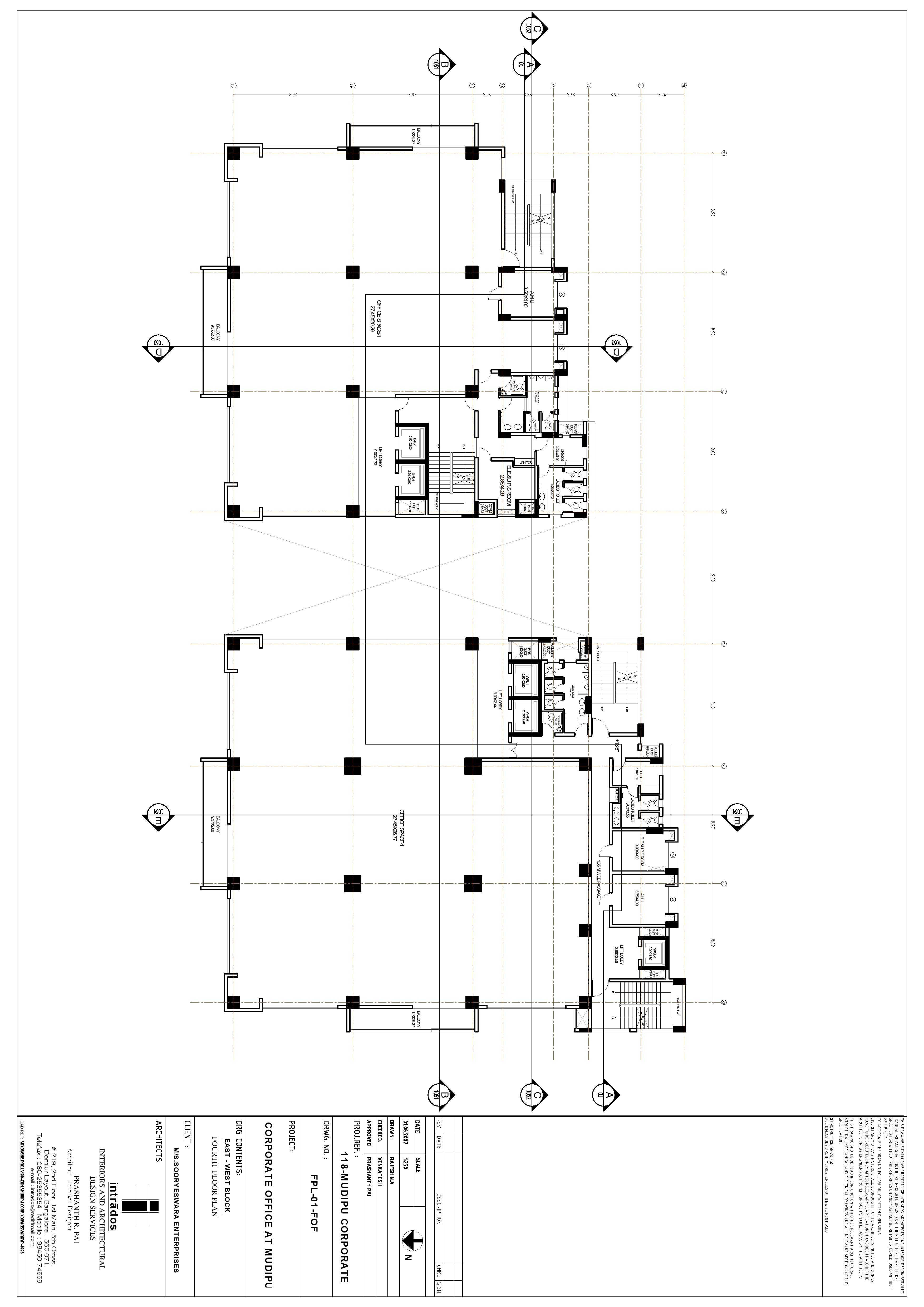
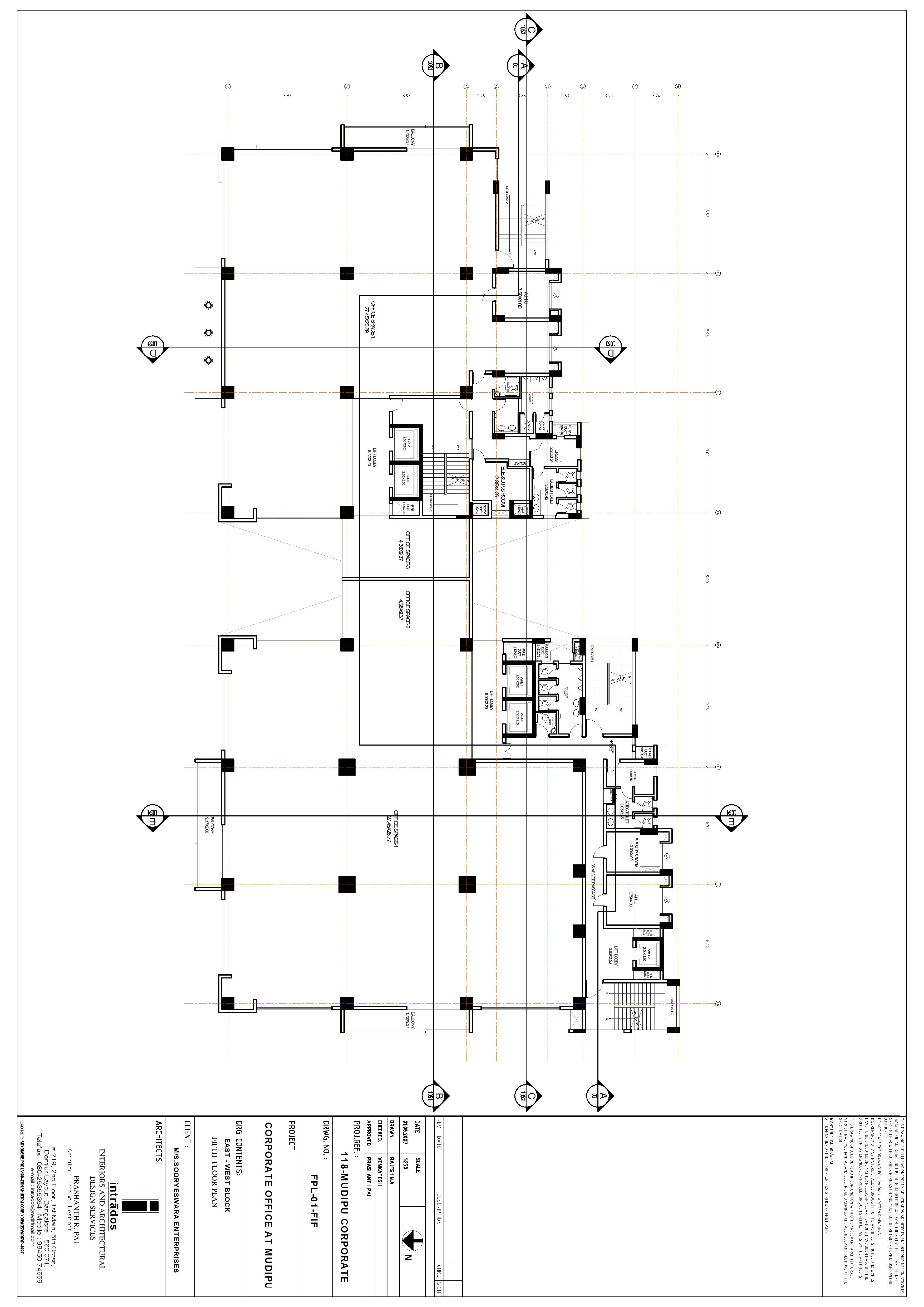
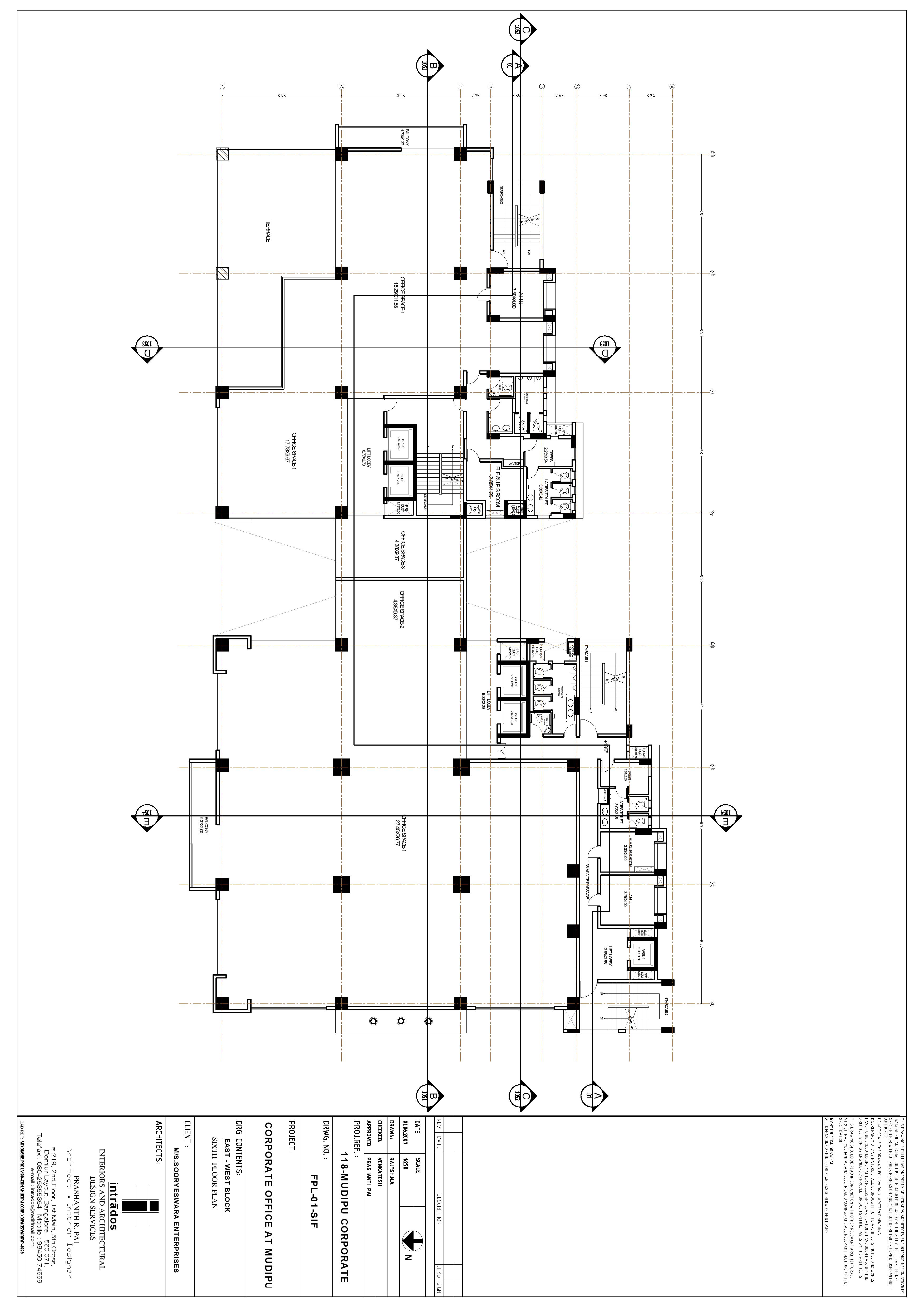
East Tower's MASTER PLAN
The total built-up area is around 2.5 lakh Sq. Ft. The area statement is shown in the below table.
| Tower | Built-up Area (in Sq. Mtr) | Leasable Area (in Sq. Mtr) | Status |
| North Tower | 6454.35 | 7332.75 | Leased Out |
| East Tower | 5344.07 | 6110.56 | Available |
| West Tower | 8736.18 | 9979.16 | Available |














